Keď je stavenisko komfortom.
Zoznámte sa s ponukou našich kancelárskych kontajnerov so sanitárnym zariadením. Štandardné farebné prevedenie – exteriér: Ďalšie farebné prevedenie za príplatok zo vzorkovníka RAL – VZORKOVNIK RAL Interiér – laminovaná drevotriesková doska – Svetlý dub alebo biela
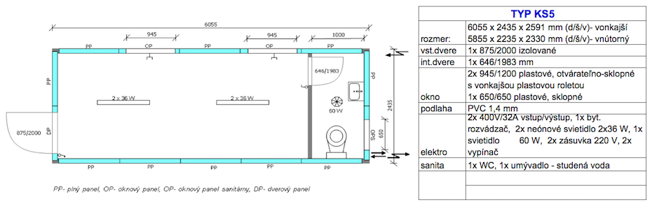
Typy kontajnerov
RAL 5010 – enciánovo modrá
RAL 9002 – šedo biela
RAL 9010 – čisto biela
RAL 7035 – svetlo šedá
RAL 9006 – bielo alumíniová (strieborná)
RAL 7016 – antracitová šedá
Izolácia – možnosti zateplenia kontajnera v hrúbkach 60/60/100 alebo 100/100/100 mm (steny, podlaha, strecha).

Výhody
Doplnkové vybavenie
Foto
Možnosti využitia kontajnerov